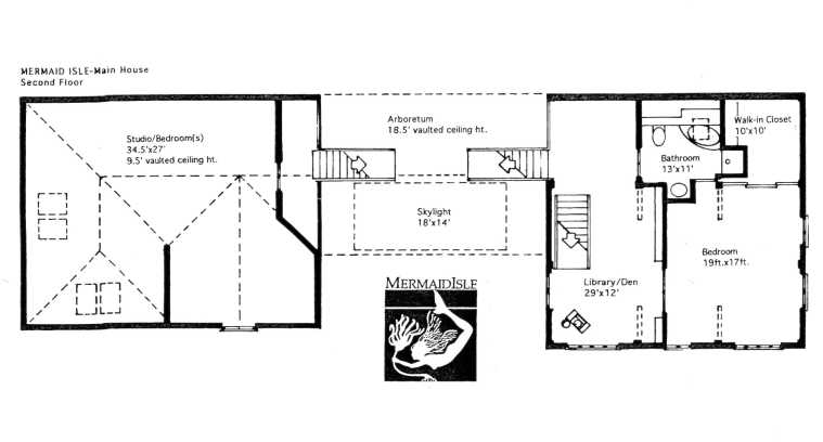
"Mermaid Isle 2nd Floor Plan"

Return to Text Description
2nd Floor Plan