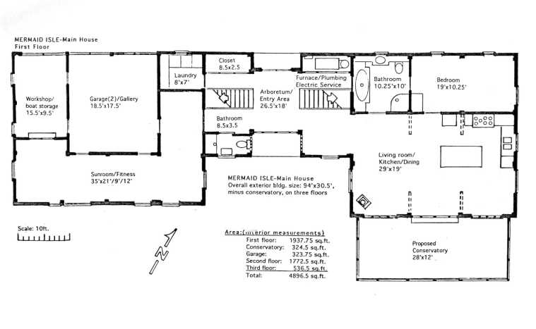
"Mermaid Isle 1st Floor Plan"

Return to Text Description
1st Floor Plan